
Our Services
We specialize in residential floor plan design for home renovations and additions. Our goal is to turn your ideas into clear, buildable plans for construction and permits.
Plans designed for the way you live.
Our services help you better understand your space and visualize the possibilities.

Field measurements
We meet on-site to gather the measurements needed for an accurate floor plan and to better understand your vision for the project.

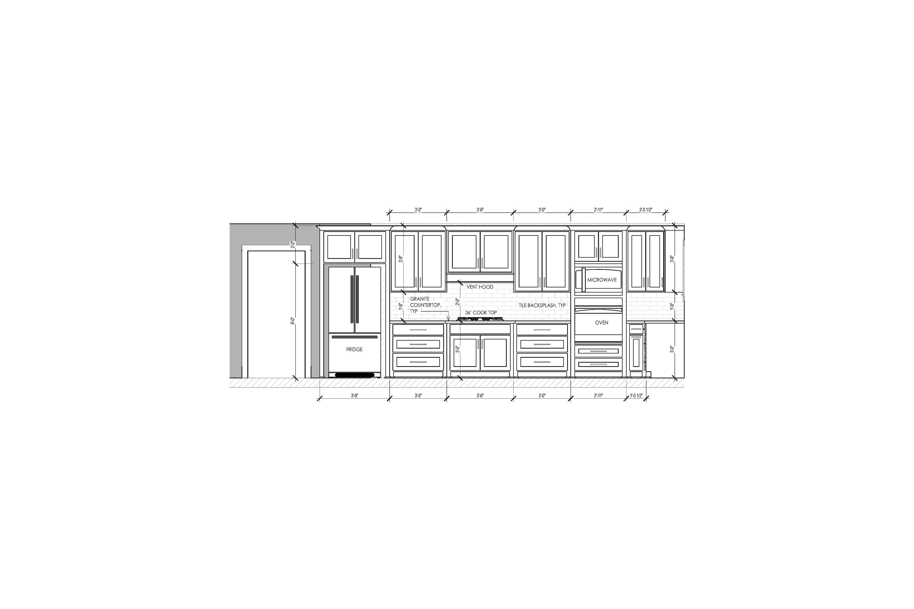
Cabinet Drawings
Cabinet drawings help visualize cabinet layouts and provide contractors with the details needed to give more accurate bids. This is an optional add-on service.

Construction Documents
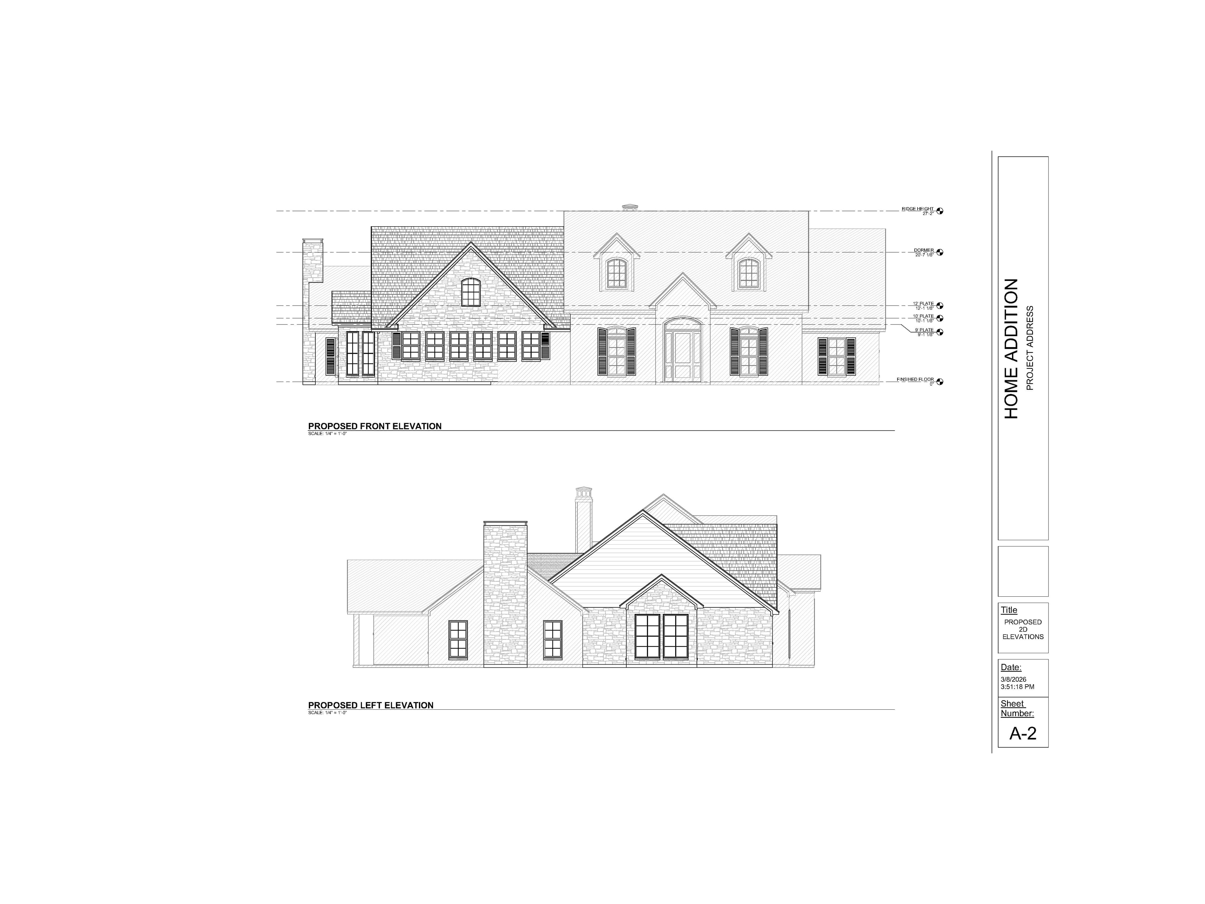
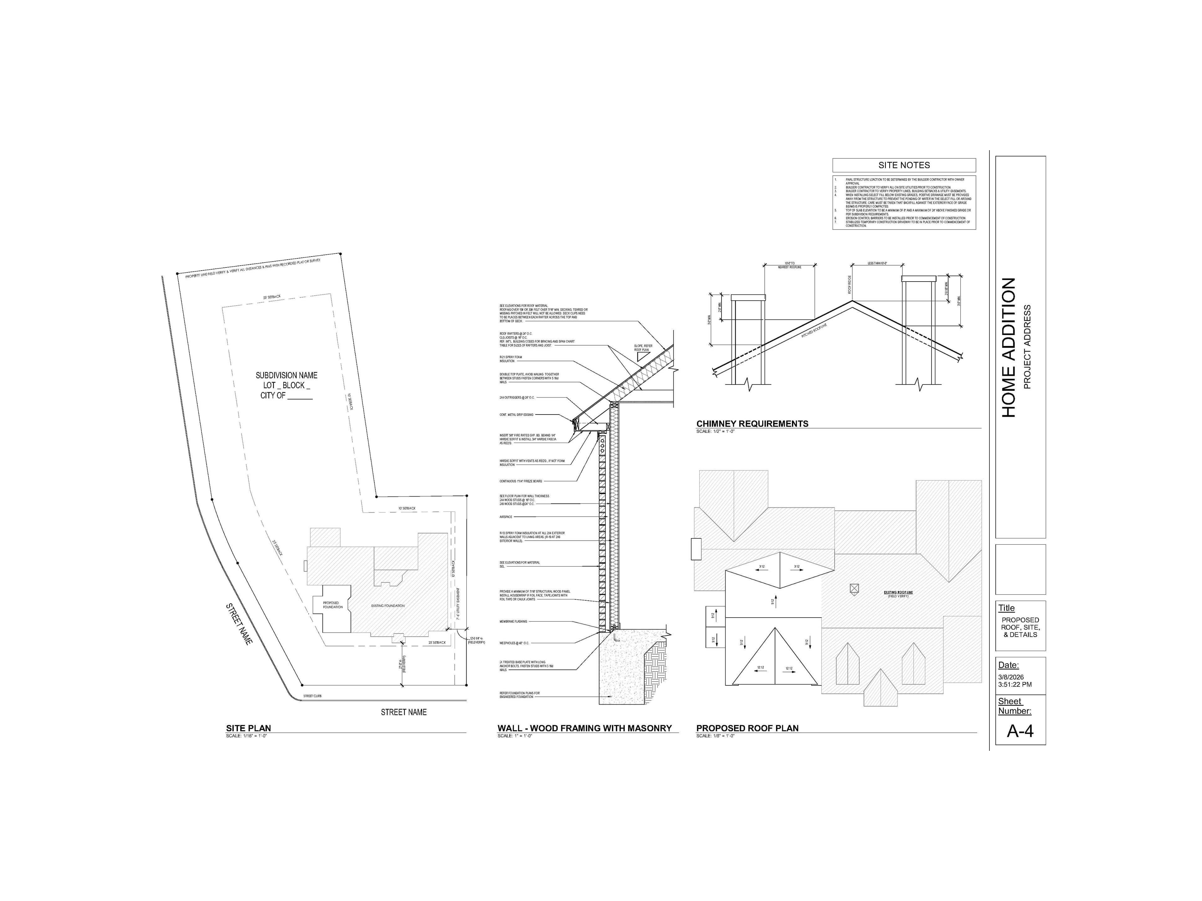
Construction documents include existing drawings, demolition plans, proposed plans, exterior elevations, roof plans, and a site plan if required. Electrical and plumbing plans, along with miscellaneous building details, are also included. See the sample set below for a typical construction package.

Colored 3D Elevation Concepts
Included in a typical construction set, these views help visualize what your project will look like and show how additions or extensions connect to the existing structure. We can also explore exterior updates by experimenting with different colors and materials.
Sample Set
Our sample set highlights the drawings and details commonly included in a complete construction plan package.






Sample Set
Cabinet layout plans are available as an optional add-on service and are not included in the standard construction set.






